top of page
MICLAEL KORS
_HYUNDAI TRADE CENTER
(COEX)
MICLAEL KORS
_HYUNDAI TRADE CENTER
(COEX)
MICLAEL KORS
_HYUNDAI TRADE CENTER
(COEX)
AIR 247 namsan
#신축빌라 #다세대 #주거
# 건축 기획, 설계, 인테리어 설계, 시공
# architecture, design, interior, construct


위치
건축 규모
주요구조
대지면적
연면적
주요마감
준공일
세대
서울 용산구 이태원동 247-17외
1필지
지상 5층
철근콘크리트조
298.00㎡
427.90㎡
외벽- 벽돌타일, 스터코, 갈바륨
강판 위 우레탄페인트
바닥- 콘크리트폴리싱,목재데크
타일
2020. 09
12세대







1F FLOOR PLAN
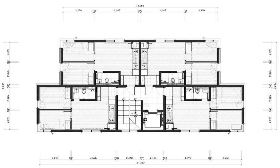
2-3F FLOOR PLAN
4F FLOOR PLAN
5F FLOOR PLAN
bottom of page










































